كوخ جاهز ذو تصميم كلاسيكي
Prefabricated Holiday Lodge, Classic Series
الكوخ الجاهزة ذو التصميم الكلاسيكي المخصص لقضاء أوقات العطلات مكون بشكل أساسي من الحمامات، وخزانات المياه، والأحواض، والمغاسل، بالإضافة إلى بعض المكونات الاختيارية الأخرى، حيث تشمل نظام تدفئة الأرضية، التحكم الذكي بواسطة تطبيق الهاتف، الستائر المتحركة وجهاز العرض HD. وذلك لضمان سهولة الوصول إليها والقدرة على تحمل التكاليف، لدينا القدرة على تخصيص هذا البيت الكلاسيكي الذي يتوافق مع مفهوم الصديق للبيئة وفعالة من حيث التكلفة.
الخصائص
- المظهر الجذاب والتصميم المحكم؛
- التركيب في الموقع؛
- التسليم السريع؛
- التحكم الذكي؛
- التكلفة الفعالة؛
- عازل للصوت؛
- صديق للبيئة؛
- العازلية؛
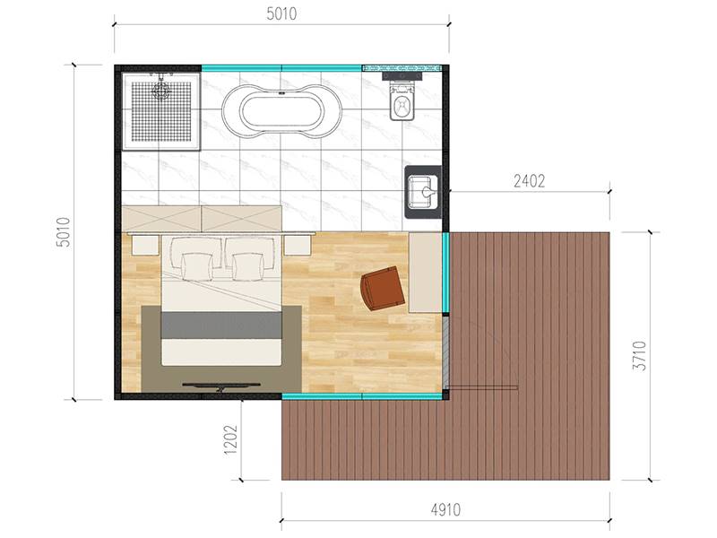
أبعاد الكوخ الجاهز ذو التصميم الكلاسيكي
- الأبعاد الكلية للحجرة: 5.01×5.01 متر
- أبعاد الشرفة: 2.51×2.4 (متر)+1.2×4.91 (متر)
- المساحة الكلية: 37.02 متر مربع (تشمل مساحة الغرفة 25.10 متر مربع والمساحة الكلية للشرفة 11.92 متر مربع)
المكونات القياسية
- أساس مسبق الصلب: دعامة أساس مسبقة الصب وفلنجة قابلة للضبط
- الهيكل الأساسية: الهيكل الصلب المجلفن بالغمس الساخن الجاهز
- عازل الجدران: العزل الحراري بأسمنت أوكسي كبريتات المغنيسيوم (اسمنت سوريل) (مخصص حسب الطلب)
- عازل الأسقف: لوح السقف المركب المعزول حرارياً (مخصص حسب الطلب)
- المناور الذكية: المنور الكهربائي الذكي المصنوع من الزجاج المعزول 5+9A+5+0.76PVB+5 Low-E مع ستارة المنور الكهربائية الذكية
- نظام الأرضيات الذكي: الأرضيات الخشبية الصلبة المركبة Dazhuang
- أرضيات المناظر الطبيعية: أرضية مركبة وهيكل فولاذي ذو الوزن الخفيف المجلفن بالغمس الساخن
- التحكم الذكي: اللوح الذكي مع مساعد الصوت (MI Home) وتطبيق الهاتف APP
- نظام السقف الذكي: لوح فوم PVC والإضاءة الذكية
- نظام التهوية النقي الذكي: ماكينة أنبوب الهواء Midea 3p
- جهاز إلكتروني ذكي: وحدة التدفئة بغشاء التسخين الكهربائي Dazhuang + نظام الإضاءة الذكي RGB + مصباح مصيدة البعوض
- الحمام الذكي: حوض ماء واحد قياسي + مرحاض + خزان المرحاض الذكي القياسي (سيفون) + غرفة الاستحمام (الشاور) + حوض استحمام + الدوش + سخان الماء بالكاقة الشمسية
يقع مقر شركة Star-up Housing في مدينة Hangzhou، وهي شركة متخصصة في البحث والتطوير والإنتاج والمبيعات للمنتجات الجاهزة. بفضل أكثر من 10 سنوات من الخبرة في البحث والتطوير والابتكار للمنتجات الجاهزة الحالية، حصلنا على العشرات من براءات الاختراع وحقوق الملكية الفكرية المستقلة. هذا هو سبب وراء احتلال منتجاتنا مكانة بارزة في الصناعة. يشمل خط منتجاتنا بشكل أساسي مباني الاستجمام والترفيه الجاهزة، المباني التجارية الجاهزة، دورات المياه العامة الجاهزة والأكواخ الجاهزة لقضاء العطلات. كل هذه المنتجات تمكن العملاء من الحصول على تجارب حياة أفضل. علاوة على ذلك، تم تسليم مشاريعنا دون أي تكلفة على بيئتنا حيث تم إجراء عملية الإنتاج بأكملها بناء على مفهوم صديق البيئة. نسعى جاهدين لنصبح علامة تجارية مشهورة عالمياً في هذه الصناعة من خلال إنتاج منتجات مسبقة الصنع مبتكرة وذات جودة عالية دون التسبب في انبعاث الكثير من الكربون.










