دورة مياه عامة جاهزة، 8CS
Prefabricated Public Toilets
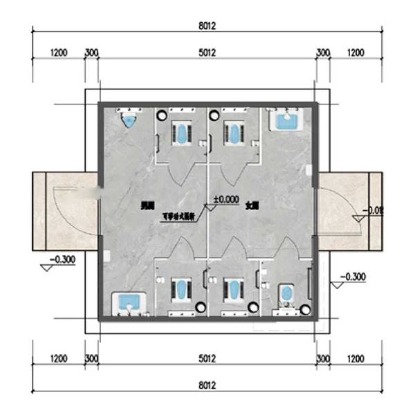
دورة مياه جاهزة عامة ذات سقف مسطح، 8CS
مصممة بحيث مقسمة إلى دورة مياه للرجال ودورة مياه للنساء، دورة مياه جاهزة عامة ذات سقف مسطح 8CS هذه ذات مساحة 29.45 متر مربع، بما في ذلك المظلة بمساحة 4.32 متر مربع.
دورة المياه الجاهزة هذه تتميز بسقف مسطح بجدار أبيض، مظلة زجاجية وسياج خشبي توفر بيئة مواتية للمستخدمين لحمايتهم من أشعة الشمس والمطر.
النوع: دورة مياه للرجال ودورة مياه للنساء
مكونات دورة مياه الرجال: 1 مرحاض تبول للرجال؛ 2 مرحاض عربي؛ 1 حوض غسيل للوجه واليدين؛ 1 مرآة؛ ألواح تقسيم من سبيكة الألومنيوم؛
مكونات دورة مياه النساء: 1 مرحاض؛ 2 مرحاض عربي؛ 1 حوض غسيل للوجه واليدين؛ 1 مرآة؛ ألواح تقسيم من سبيكة الألومنيوم؛
دورة مياه جاهزة عامة ذات سقف مائل، 8CS
مقسمة إلى دورة مياه للرجال ودورة مياه للنساء، دورة مياه جاهزة عامة ذات سقف مسطح 8CS هذه ذات مساحة 29.45 متر مربع، بما في ذلك المظلة بمساحة 4.32 متر مربع.
السقف المسطح مع الجدار الأبيض، المظلة الزجاجية والسياج الخشبي توفر بيئة مواتية للمستخدمين أثناء حمايتهم من أشعة الشمس والمطر.
النوع: دورة مياه للرجال ودورة مياه للنساء
مكونات دورة مياه الرجال: 1 مرحاض تبول للرجال؛ 2 مرحاض عربي؛ 1 حوض غسيل للوجه واليدين للكبار؛ 1 مرآة؛ ألواح تقسيم من سبيكة الألومنيوم؛
مكونات دورة مياه النساء: 1 مرحاض؛ 2 مرحاض عربي؛ 1 حوض غسيل للوجه واليدين للكبار؛ 1 مرآة؛ ألواح تقسيم من سبيكة الألومنيوم؛

















