دورة مياه عامة جاهزة، 19CS
Prefabricated Public Toilets
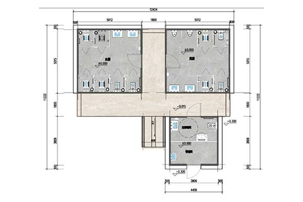
دورة مياه جاهزة عامة ذات سقف مسطح، 19CS
مقسمة إلى دورة مياه للرجال ودورة مياه للنساء، دورة المياه للجنسين، دورة المياه العامة، دورة المياه الجاهزة العامة ذات السقف المسطح 19CS هذه ذات مساحة 95.06 متر مربع، بما في ذلك المظلة بمساحة 30.3 متر مربع. الجدار الأبيض مع السقف المسطح والمظلة الزجاجية والسياج الخشبي لدورة المياه الجاهزة يوفر بيئة مناسبة للمستخدمين وفي نفس الوقت يحميهم من أشعة الشمس والمطر.
مكونات دورة مياه الرجال: 2 مرحاض تبول؛ 2 مرحاض؛ 2 مرحاض عربي؛ 2 حوض غسيل للوجه واليدين؛ 2 مرآة؛ ألواح تقسيم من سبيكة الألومنيوم؛
مكونات دورة مياه النساء: 4 مراحيض عربية؛ 2 مرحاض؛ 2 حوض غسيل للوجه واليدين؛ 2 مرآة؛ ألواح تقسيم من سبيكة الألومنيوم؛
مكونات دورة المياه للجنسين: 1 مرحاض؛ 1 حوض غسيل للوجه واليدين للكبار؛ مكان واحد مخصص لغيارات الأطفال؛ 1 مرآة؛ ألواح تقسيم من سبيكة الألومنيوم؛
مكونات دورة المياه العامة للجنسين: حوض غسيل الممسحة
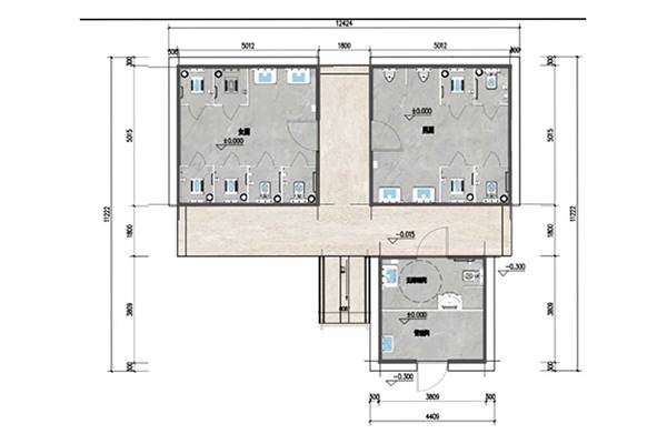
دورة مياه جاهزة عامة ذات سقف المائل، 19CS
مقسمة إلى دورة مياه للرجال ودورة مياه للنساء، دورة المياه للجنسين، دورة المياه العامة، دورة المياه الجاهزة العامة ذات السقف المسطح 19CS هذه ذات مساحة 95.06 متر مربع، بما في ذلك المظلة بمساحة 30.3 متر مربع. الجدار الأبيض مع السقف المسطح والمظلة الزجاجية والسياج الخشبي لدورة المياه الجاهزة يوفر بيئة مناسبة للمستخدمين وفي نفس الوقت يحميهم من أشعة الشمس والمطر.
مكونات دورة مياه الرجال: 2 مرحاض تبول؛ 2 مرحاض عربي؛ 2 مرحاض؛ 2 حوض غسيل للوجه واليدين؛ 2 مرآة؛ ألواح تقسيم من سبيكة الألومنيوم؛
مكونات دورة مياه النساء: 4 مراحيض عربية؛ 2 مرحاض؛ 2 حوض غسيل للوجه واليدين؛ 2 مرآة؛ ألواح تقسيم من سبيكة الألومنيوم؛
مكونات دورة المياه للجنسين: 1 مرحاض؛ 1 حوض غسيل للوجه واليدين للكبار؛ مكان واحد مخصص لغيارات الأطفال؛ 1 مرآة؛ ألواح تقسيم من سبيكة الألومنيوم؛
مكونات دورة المياه العامة للجنسين: حوض غسيل الممسحة





















