دورة مياه جاهزة للمعاقين، 3SS
Prefabricated Disabled Toilets
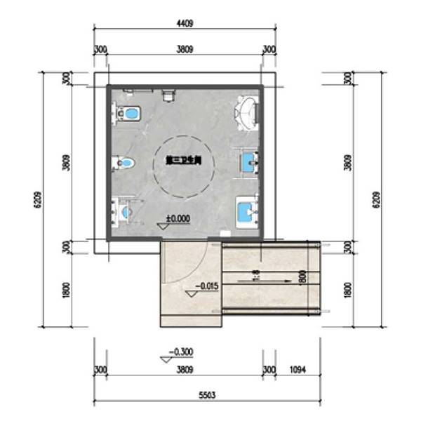
دورة مياه جاهزة للمعاقين ذات سقف مسطح، 3SS
مقسمة إلى دورة مياه للرجال ودورة مياه للنساء، دورة مياه جاهزة للمعاقين ذات سقف مسطح 3SS هذه ذات مساحة 18.82 متر مربع، بما في ذلك المظلة بمساحة 4.32 متر مربع.
الجدار الأبيض مع السقف المسطح والمظلة الزجاجية والسياج الخشبي لدورة المياه الجاهزة يوفر بيئة مناسبة للمستخدمين وفي نفس الوقت يحميهم من أشعة الشمس والمطر.
دورة مياه لذوي الاحتياجات الخاصة
المكونات: مرحاض واحد للكبار؛ 1 مرحاض للأطفال؛ مكان واحد مخصص لغيارات الأطفال؛ 1 حوض غسيل للوجه واليدين؛ حوض غسيل للوجه واليدين لكبار السن، المعاقين والحوامل؛ 1 مرحاض تبول؛ 2 مرآة؛ 1 كرسي للأطفال؛
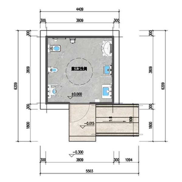
دورة مياه جاهزة للمعاقين ذات سقف مائل، 3SS
مصممة لذوي الاحتياجات الخاصة، دورة المياه الجاهزة للمعاقين ذات سقف المائل هذه ذات مساحة 18.82 متر مربع، بما في ذلك المظلة بمساحة 4.32 متر مربع.
الجدار الأبيض مع السقف المسطح والمظلة الزجاجية والسياج الخشبي لدورة المياه الجاهزة يوفر بيئة مناسبة للمستخدمين وفي نفس الوقت يحميهم من أشعة الشمس والمطر.
المكونات: مرحاض واحدة للكبار؛ 1 مرحاض للأطفال؛ مكان واحد مخصص لغيارات الأطفال؛ 1 حوض غسيل للوجه واليدين؛ حوض غسيل للوجه واليدين لكبار السن، المعاقين والحوامل؛ 1 مرحاض تبول؛ 2 مرآة؛ 1 كرسي للأطفال؛





















