دورة مياه عامة جاهزة، 15CS
Prefabricated Public Toilets
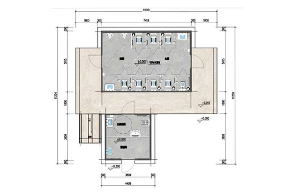
دورة مياه جاهزة عامة ذات سقف مسطح، 15CS
دورة المياه الجاهزة العامة ذات السقف المسطح 15CS ذات مساحة 88.84 متر مربع، بما في ذلك المظلة بمساحة 37.14 متر مربع و مقسمة إلى دورة مياه للرجال ودورة مياه للنساء، دورة مياه للجنسين ودورة مياه عامة. الجدار الأبيض مع السقف المسطح والمظلة الزجاجية والسياج الخشبي لدورة المياه الجاهزة يوفر بيئة مناسبة للمستخدمين وفي نفس الوقت يحميهم من أشعة الشمس والمطر.
النوع: دورة مياه للرجال؛ دورة مياه للنساء؛ دورة مياه للجنسين؛ دورة مياه عامة؛
مكونات دورة مياه الرجال: 2 مرحاض تبول؛ 3 مراحيض عربية؛ 1 حوض غسيل للوجه واليدين؛ 1 مرآة؛ ألواح تقسيم من سبيكة الألومنيوم؛
مكونات دورة مياه النساء: 4 مرحاض عربي؛ 1 مرحاض؛ 1 حوض غسيل للوجه واليدين؛ 1 مرآة؛ ألواح تقسيم من سبيكة الألومنيوم؛
مكونات دورة المياه للجنسين: 1 مرحاض؛ مكان واحد مخصص لغيارات الأطفال؛ حوض غسيل للوجه واليدين؛ 1 مرآة؛
مكونات دورة المياه العامة للجنسين: حوض غسيل الممسحة
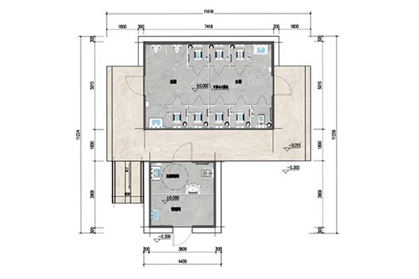
دورة مياه جاهزة عامة ذات سقف مائل، 15CS
مقسمة إلى دورة مياه للرجال ودورة مياه للنساء، دورة المياه للجنسين، دورة المياه العامة، دورة المياه الجاهزة العامة ذات السقف المائل 15CS هذه ذات مساحة 88.84 متر مربع، بما في ذلك المظلة بمساحة 37.14 متر مربع. الجدار الأبيض مع السقف المسطح والمظلة الزجاجية والسياج الخشبي لدورة المياه الجاهزة يوفر بيئة مناسبة للمستخدمين وفي نفس الوقت يحميهم من أشعة الشمس والمطر.
النوع: دورة مياه للرجال؛ دورة مياه للنساء؛ دورة مياه للجنسين؛ دورة مياه عامة؛
مكونات دورة مياه الرجال: 2 مرحاض تبول؛ 3 مراحيض عربية؛ 1 حوض غسيل للوجه واليدين؛ 1 مرآة؛ ألواح تقسيم من سبيكة الألومنيوم؛
مكونات دورة مياه النساء: 4 مرحاض عربي؛ 1 مرحاض؛ 1 حوض غسيل للوجه واليدين؛ 1 مرآة؛ ألواح تقسيم من سبيكة الألومنيوم؛
مكونات دورة المياه للجنسين: 1 مرحاض؛ مكان واحد مخصص لغيارات الأطفال؛ حوض غسيل للوجه واليدين؛ 1 مرآة؛
مكونات دورة المياه العامة: حوض غسيل الممسحة





















